RESIDENTIAL

HOUSE NEL

Serengeti Golf & Wildlife Estate, Kempton Park

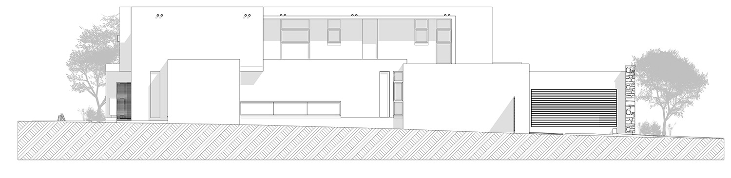
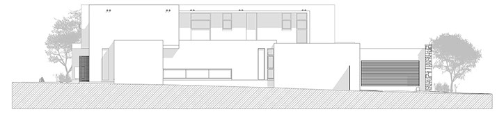
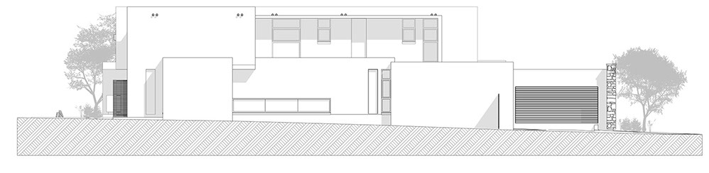
Featuring a golf course fairway view accompanied by lush wetlands to the South, House Nel called for a contemporary family home that maximizes the view to the South.  With access directly from the North, orientation became a key obstacle to address. The dwelling features a traditional family home accommodation schedule with the exception of the client’s need for 5 garages. The garage requirement had to be carefully considered due to the North only vehicular access of the site. Visitors are greeted with a delicate palette of stone clad walls, timber screens and landscaping when approaching the home.

 

Due to the specific accommodation and site limitations a U-shape footprint was implemented for the overall layout. By orientating the living and dining room area to the north, allows the house to live out to the south overlooking the view. With the southern patio area becoming the heart of the house, bedrooms to the East are directly connected to a naturally aged hardwood deck patio, accompanied with a L-shaped pool wrapping around the deck area. Large concrete slab overhangs protect the living and sleeping areas from eastern and western sun and with the patio situated South, the overhangs allows for the use of large fenestration areas. Glass sliding folding doors in the open plan living and dining area opens up onto the patio and deck area creating one large open indoor and outdoor living space. When fully opened the golf course view over the wetland becomes the main feature and movement between indoor and outdoor spaces is unrestricted.

 

With northern exposure being minimal the living and dining room roof slab opens upwards at a subtle angel to allow northern solar exposure and subsequently becomes one of the dominant architectural features of the home. Narrow cross sections allow for good natural ventilation and together with the concrete thermal mass roof slabs lowers the temperature of the interior spaces in summer months. For solar control and privacy concerns, multiple fixed and adjustable hardwood screens were detailed on the South, West and Northern facades.

 

Ground floor and first floor levels are connected with a detailed white oak timber staircase resulting in a prominent feature when entering the house. The main colour palette; off shutter concrete ceilings and walls in shades of architectural greys are softened by the use of stained solid white oak cladding to the staircase treads and landing as well as the support structure.

Copyright © 2021 Anthrop Architects. All rights reserved.