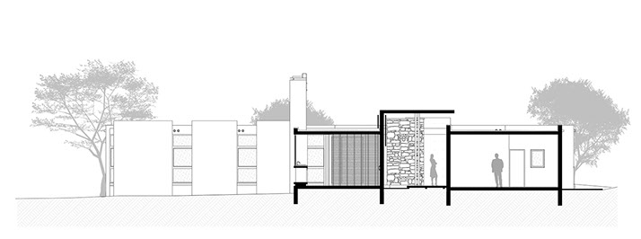
RESIDENTIAL

HOUSE CAWTHORNE

Serengeti Golf & Wildlife Estate, Kempton Park

Copyright © 2021 Anthrop Architects. All rights reserved.